PLA



Museo de las tres culturas, Puente Castro. León (Spain) 2008


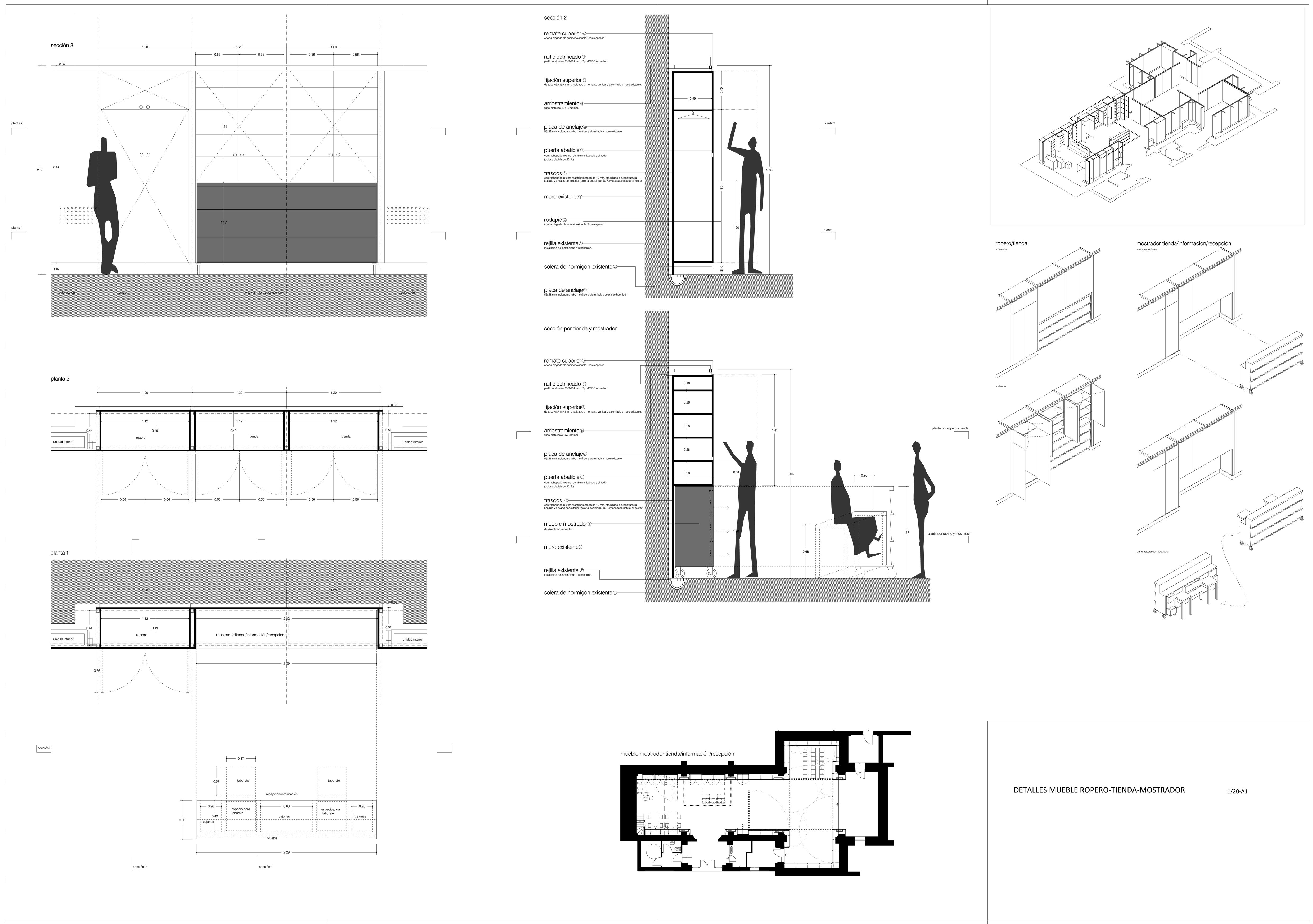
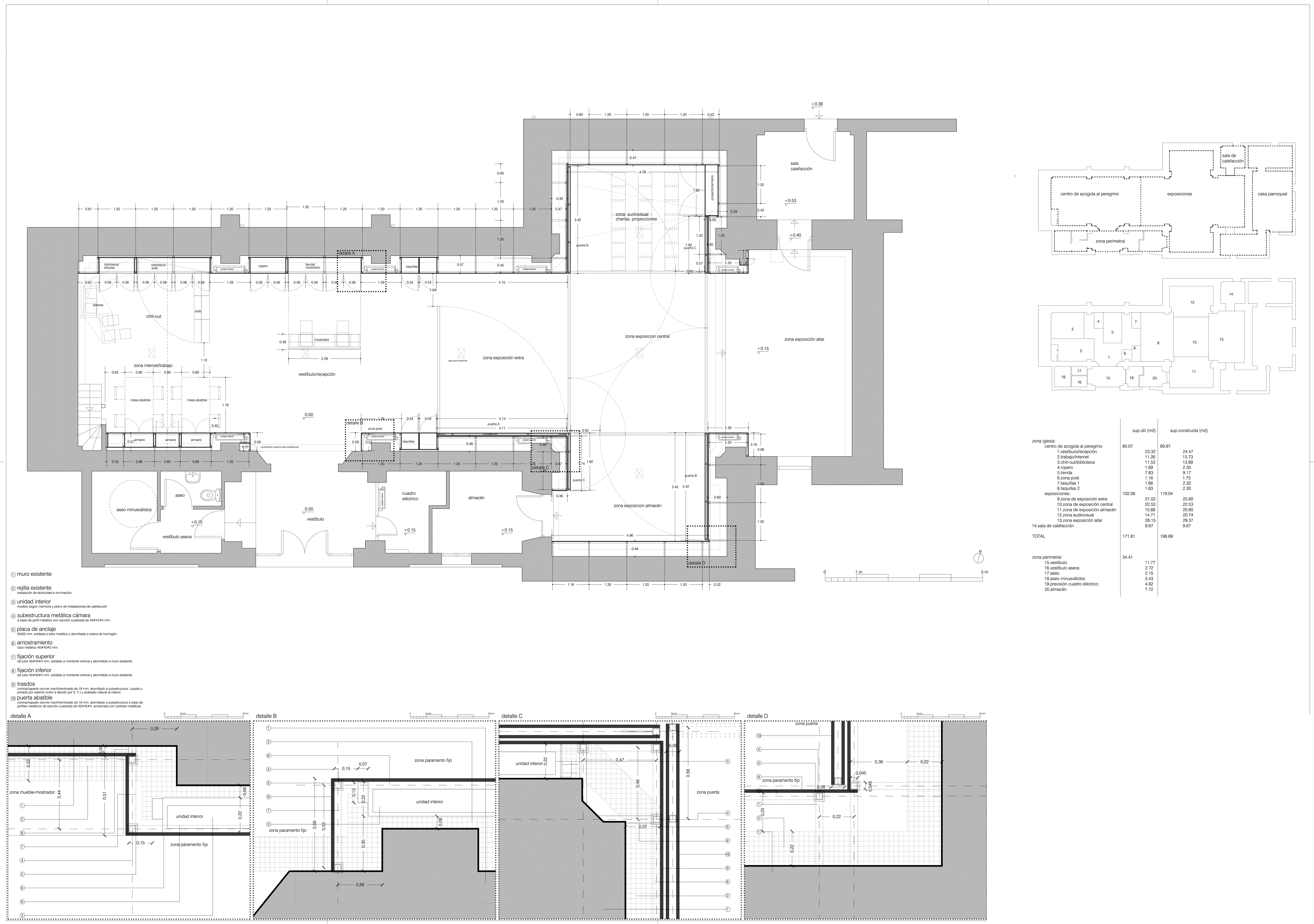
Las variaciones espaciales que posee el proyecto se materializan a partir del movimiento y la combinación de las cinco puertas existentes y ocultas en los paramentos perimetrales. Dichas variaciones permiten la mayor flexibilidad, versatilidad y funcionalidad para el objeto de la propuesta. Según las necesidades de cada programa o de la importancia de cada uno el espacio se modifica reconfigurándose. La definición espacial responden a la representación de las tensiones programáticas internas y sus requerimientos específicos.

The space variations that the project offer are materialized due to the movement and combination of the doors and extesible furniture hidden in the walls of the inner perimeter. These changes allow a greater flexibility, versatility and functionality, maintaining the original church space. According to use of each program or the importance the space transform reshaping it self. The space definition responds to the representation of the internal programmatic tensions and their specific requirements.
POLÍTICA DE COOKIES ----- POLÍTICA DE PRIVACIDAD