︎
estudio sic
arquitecturas | diseños
︎
︎
︎
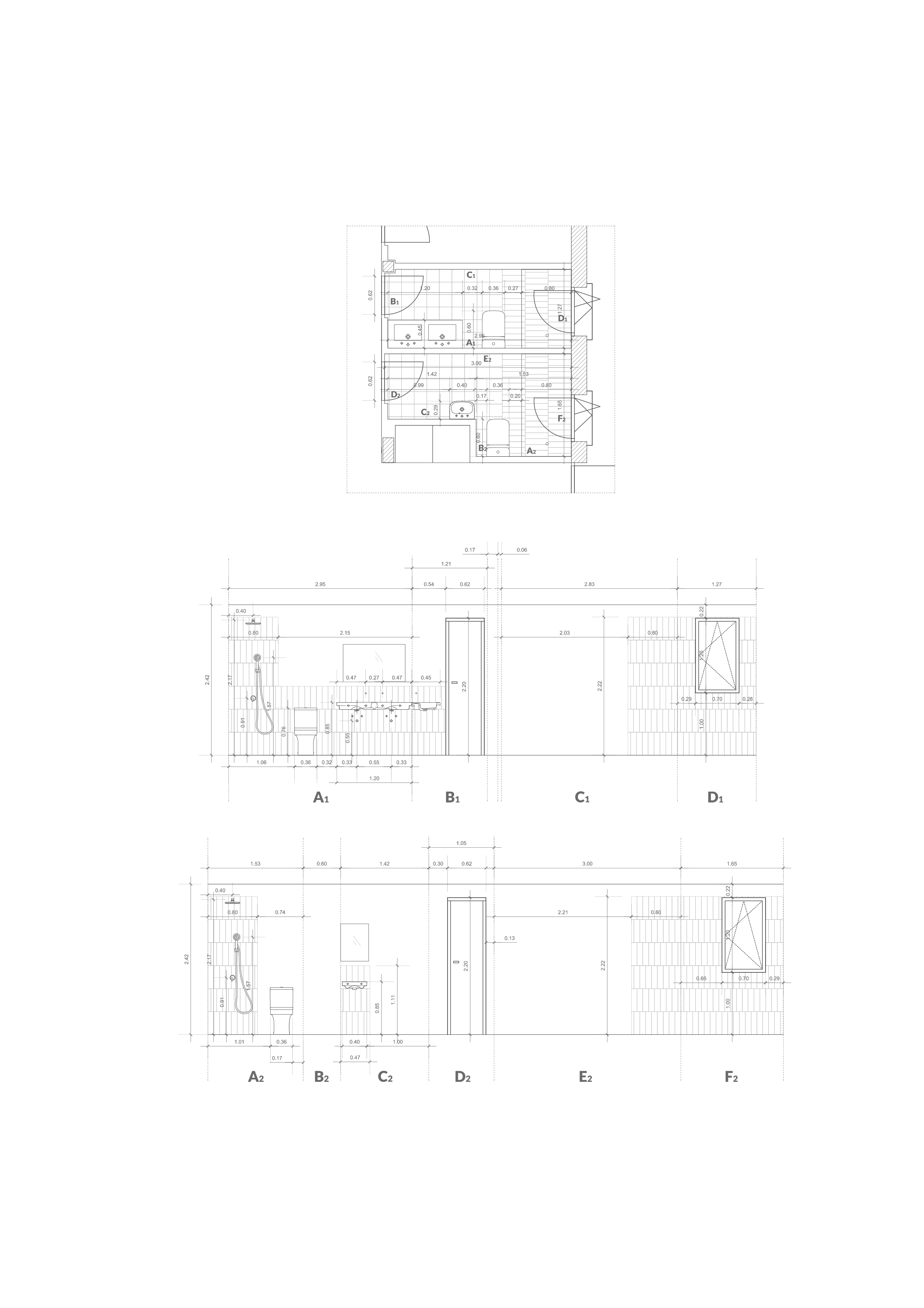
Las secciones no son simpre un corte perpendicular a la línea del horizonte.
Section drawings are not always a perpendicular cut to the horizon line.
POLÍTICA DE COOKIES
-----
POLÍTICA DE PRIVACIDAD
Esta web maneja cookies, su uso supone aceptarlas.
OK
NO